
Maintenance, Heat, Insurance, Water, Common Area Maintenance
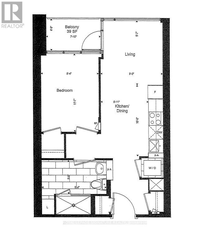
$450.58 MonthlyLive where the energy of the city meets everyday comfort at Time & Space Condos, one of downtown Toronto's most exciting communities. This stylish and functional 1-bedroom suite offers 515 sq ft of thoughtfully designed living, perfect for first-time buyers, investors, or anyone craving a vibrant urban lifestyle. Enjoy a sleek contemporary kitchen with high-end appliances, a bright and open living space, and a private bedroom designed for comfort and relaxation. Step out to your east-facing balcony and take in beautiful city views and morning sun. You're just steps to the Distillery District, TTC, St. Lawrence Market, and the waterfront, putting the best of Toronto right at your doorstep. Residents enjoy an incredible lineup of amenities, including an infinity-edge pool, rooftop cabanas, outdoor BBQ area, games room, gym, yoga studio, party room, and more.This is downtown living done right. (id:64384)
| MLS® Number | C12851810 |
| Property Type | Single Family |
| Community Name | Waterfront Communities C8 |
| Amenities Near By | Hospital, Park, Place Of Worship, Public Transit, Schools |
| Community Features | Pets Allowed With Restrictions |
| Features | Balcony, Carpet Free |
| Pool Type | Outdoor Pool |
| View Type | City View |
| Bathroom Total | 1 |
| Bedrooms Above Ground | 1 |
| Bedrooms Total | 1 |
| Age | 0 To 5 Years |
| Amenities | Security/concierge, Recreation Centre, Exercise Centre, Party Room |
| Appliances | Cooktop, Dishwasher, Dryer, Microwave, Oven, Washer, Refrigerator |
| Basement Type | None |
| Cooling Type | Central Air Conditioning |
| Exterior Finish | Concrete |
| Flooring Type | Laminate |
| Heating Fuel | Natural Gas |
| Heating Type | Forced Air |
| Size Interior | 500 - 599 Sqft |
| Type | Apartment |
| Underground | |
| Garage |
| Acreage | No |
| Land Amenities | Hospital, Park, Place Of Worship, Public Transit, Schools |
| Level | Type | Length | Width | Dimensions |
|---|---|---|---|---|
| Main Level | Living Room | 2.92 m | 2.74 m | 2.92 m x 2.74 m |
| Main Level | Dining Room | 3.2 m | 2.11 m | 3.2 m x 2.11 m |
| Main Level | Kitchen | 3.2 m | 2.11 m | 3.2 m x 2.11 m |
| Main Level | Bedroom | 3.53 m | 2.54 m | 3.53 m x 2.54 m |