1 Bedroom 1 Bathroom 500 - 599 sqft
Central Air Conditioning Forced Air
$1,950 Monthly
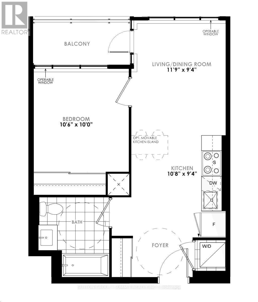
This Connect Condo In Milton Features A Contemporary 1-Bedroom, 1-Bathroom Layout With Underground Parking And A Storage Locker. Enjoy Great Views From The Unit And Balcony, Along With Stainless Steel Appliances, Elegant Quartz Countertops, And Wide Plank Laminate Flooring. The Interior Boasts A 9-Foot Smooth Ceiling And Modern Finishes, Including Quartz Countertops And Consistent Laminate Flooring Throughout. Located Just Minutes From Major Highways And The Milton Train Station, This Condo Provides Convenient Access To Nearby Transit, Healthcare, And Schools. (id:64384)
Property Details
| MLS® Number | W13002138 |
| Property Type | Single Family |
| Community Name | 1028 - CO Coates |
| Communication Type | High Speed Internet |
| Community Features | Pets Allowed With Restrictions |
| Features | Balcony |
| Parking Space Total | 1 |
Building
| Bathroom Total | 1 |
| Bedrooms Above Ground | 1 |
| Bedrooms Total | 1 |
| Age | New Building |
| Amenities | Visitor Parking, Exercise Centre, Security/concierge, Party Room, Storage - Locker |
| Appliances | Dishwasher, Dryer, Stove, Washer, Refrigerator |
| Basement Type | None |
| Cooling Type | Central Air Conditioning |
| Exterior Finish | Brick |
| Heating Fuel | Natural Gas |
| Heating Type | Forced Air |
| Size Interior | 500 - 599 Sqft |
| Type | Apartment |
Parking
Land
Rooms
| Level | Type | Length | Width | Dimensions |
|---|
| Main Level | Living Room | 4.34 m | 3.05 m | 4.34 m x 3.05 m |
| Main Level | Dining Room | 4.34 m | 3.05 m | 4.34 m x 3.05 m |
| Main Level | Kitchen | 3.05 m | 2.13 m | 3.05 m x 2.13 m |
| Main Level | Bedroom | 2.99 m | 3.05 m | 2.99 m x 3.05 m |